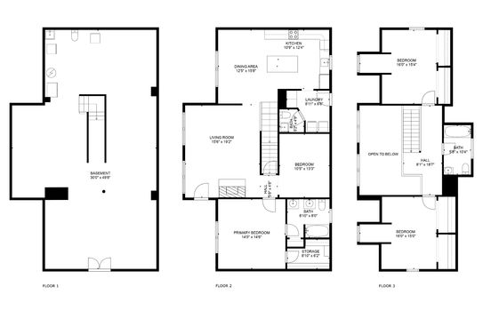
Discover this beautiful log home situated on 43.8 acres of picturesque rolling hills in Tennessee! The view from your new front deck is amazing, making it the perfect spot to enjoy both sunrises and sunsets. The home features one bedroom and one and a half bathrooms on the main level, along with a den and a living room that boasts a vaulted ceiling and a cozy wood stove. Upstairs, you'll find two spacious bedrooms and a full bath. The large walkout basement is currently unfinished but offers a lot of potential. This property is equipped with a backup whole-house generator, a brand-new roof, a new retaining wall, a new deck, an updated septic system, and a fully maintained and freshly painted exterior. The fiberglass inground pool is a low-maintenance, fantastic addition for the hot summer months and comes with a brand-new pump. The 43.8 acres includes paths that wind throughout… Read Morethe property, allowing you to fully immerse yourself in nature. A year-round creek flows through the lower part of the land, providing a great spot for exploration. You'll find open fields, wooded areas, rolling hills, and flatter sections. Plus, there’s ample road frontage as well. *** Home has fiber internet ***Read Less
Highlights
Thinking About Selling?
Get a personalized, in-person home valuation with detailed insights on your property's value, local market trends, and opportunities to maximize your sale.
Facing an out-of-state move, our clients needed a quick and profitable sale. We partnered with a local stager, captured stunning twilight photos, and launched a focused marketing campaign to attract the right buyers fast.
Sold Above
0
K
Listing Price
Private
0
Showings
Competitive
0
Offers
open
0
houses
In the Words of our Clients
Success Stories
"Anthony did an amazing job helping us find our dream land! Very knowledgeable of land in middle Tennessee! Would recommend him to anyone looking to find their dream land or homestead!"
"Anthony was great to work with and helped us find the property of our dreams where we can build our homestead.
Highly recommended!!"
"Anthony is an incredible realtor. This was my second home buying experience and by far the best. He knows Middle Tennessee very well and knew how to guide us through the local market. His communication was excellent and was a strong advocate for what… we were looking for in our new home. I will be trusting him with all of my real estate needs in the future. Thank you again!"
"Such a pleasant and quick closing. Great company with a knowledgeable staff. Thank you."
The market remains strong, with high demand and low inventory. Whether you're just exploring or ready to sell, the right insights can help you move forward with confidence.
Free Home Valuation
What's my home worth
Find out what your home could be worth in just 3 easy steps. Our instant valuation tool uses real-time market data to give you a quick, reliable estimate, perfect for planning your next move.
Please wait while we generate your report
Get Your Free Report
Enter in your information below to view your full report. Don't worry, we will also email you a copy as well so you have it saved!
Uh Oh!
There doesn't seem to be an automatic way to determine the price of your home. If you enter in your information below we can create a personalized report just for you!
Thanks for requesting a free home valuation!
Please allow up to 48hrs for us to research and deliver your personal comprehensive analysis. If you have any questions in the meantime, feel free to give us a call or drop us a note.
Interested in selling your home?
Get a free in-depth home analysis by a local expert. (it's free)